¿Qué hace especial a la casa Randwick 2? Nada menos que su diseño solar pasivo, sus dispositivos para el ahorro de agua, jardines de enfriamiento y, por supuesto, su hermoso y nativo paisaje australiano.

Los materiales de construcción utilizados por la firma Day Bukh Architects en su intervención a esta casa ya existente donde vive una joven pareja de profesionales no son menos sostenibles: maderas renovables, cemento de fibra de bajo impacto, ladrillo reciclado y vidrio bajo emisivo, que minimiza la pérdida de calor y resulta más que útil en aquellas noches de gélido invierno.

Todo está dispuesto para que los habitantes de Randwick 2 vivan de la más verde manera: leen libros y revistas iluminados con LED, cocinan con electrodomésticos de bajo consumo, recolectan agua de lluvia para reutilizarla e incorporan mediante dispositivos la energía del sol para llevar una consciente, natural y alegre existencia en un fragmento de paraíso.
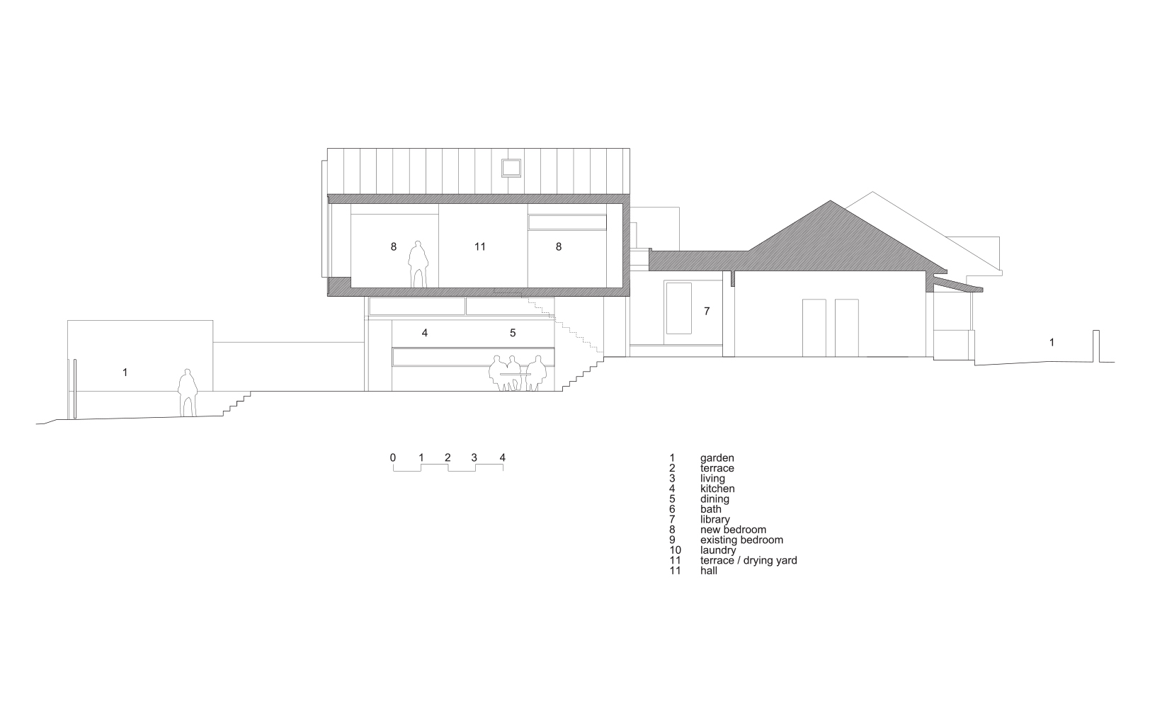
Es así como los arquitectos se inspiraron en la tradicional idea infantil de una casa techada a dos aguas— en su pureza de formas— y la acondicionaron según su concepción de la arquitectura moderna. El paisaje está diseñado para que el aire libre fluya hacia los espacios interiores, conectándolos en lo visual y lo espacial.

Texto: Carlos Vicente Castro
Imágenes: ©Day Bukh Architects








